BRUNSWICK COUNTY 11/5/2025 5:25:36 PM
KIDD DWIGHT ALLEN ETUX        KIDD AIMEE Return/Appeal Notes:   Parcel: 185CF005
1420 ST DUNSTAN CT SE BOLIVIA 28422 COUNTY PLAT: 0112/0017 UNIQ ID 169308 SPLIT FROM ID 39699
80085626     ID NO: 203920913863
BRUNSWICK COUNTY (100), SUPPLY FIRE (400)        CARD NO. 1 of 1  
Reval Year: 2019 Tax Year: 2021 L-349 PH-7 AVALON PL 112/17 1.0000 LT   SRC=  
Appraised by 85 on 11/18/2019 501H AVALON OF THE CAROLINAS TW-05 CI-00 FR-18 EX- AT- LAST ACTION 20200806
CONSTRUCTION DETAIL MARKET VALUE   DEPRECIATION CORRELATION OF VALUE
Foundation - 4
Con Ftg/Crawl 5.00
Sub Floor System - 2
Slab On Grade 5.00
Exterior Walls - 10
Aluminum/Vinyl Siding 30.00
Roofing Structure - 03
Gable 7.00
Roofing Cover - 03
Composition Shingle 4.00
Interior Wall Construction - 5
Drywall/Sheetrock 21.00
Interior Floor Cover - 12
Hardwood 10.00
Interior Floor Cover - 14
Carpet 0.00
Heating Fuel - 04
Electric 1.00
Heating Type - 09
Heat Pump Only 4.00
Air Conditioning Type - 03
Central 4.00
Bedrooms/Bathrooms/Half-Bathrooms
4/2/1 15.000
Bedrooms
BAS - 0 FUS - 4 LL - 0 _
Bathrooms
BAS - 0 FUS - 2 LL - 0 _
Half-Bathrooms
BAS - 1 FUS - 0 LL - 0 _
Office
BAS - 0 FUS - 0 LL - 0 0
TOTAL POINT VALUE 106.000
BUILDING ADJUSTMENTS
Market/Design 04 -.05 0.9500
Quality 3 AVERAGE 1.0000
Size Size Size 0.9500
TOTAL ADJUSTMENT FACTOR 0.900
TOTAL QUALITY INDEX 95
USE MOD Eff. Area QUAL BASE RATE RCN EYB AYB
   Standard  0.00000
CREDENCE TO MARKET
01 01 2,600 95 83.60 217361 2019 2019 % GOOD 100.0
DEPR. BUILDING VALUE - CARD 217,360
TYPE: SINGLE FAMILY RESIDENTIAL SFR CONSTRUCTION
STYLE: 3 - 2.0 Stories
 

Click on image to enlarge
DEPR. OB/XF VALUE - CARD 4,900
MARKET LAND VALUE - CARD 36,000
TOTAL MARKET VALUE - CARD 258,260
TOTAL APPRAISED VALUE - CARD 258,260
TOTAL APPRAISED VALUE - PARCEL 258,260
TOTAL PRESENT USE VALUE - PARCEL 0
TOTAL VALUE DEFERRED - PARCEL 0
TOTAL TAXABLE VALUE - PARCEL $ 258,260
PRIOR
BUILDING VALUE 0
OBXF VALUE 0
LAND VALUE 0
PRESENT USE VALUE 0
DEFERRED VALUE 0
TOTAL VALUE 0
PERMIT
CODE DATE NOTE NUMBER AMOUNT
ROUT: WTRSHD:
SALES DATA
OFF. RECORD DATE DEED TYPE Q/U V/I INDICATE SALES PRICE
BOOK PAGE MO YR
04229 0084 8 2019 SW* Q I 230000
03833 0613 10 2016 NW C V  
03833 0597 10 2016 SW* A V  
02864 1310 12 2008 WD U I  
02819 0869 7 2008 WD U V  
02325 0816 1 2006 WD U V  
02238 0253 9 2005 WD U V  
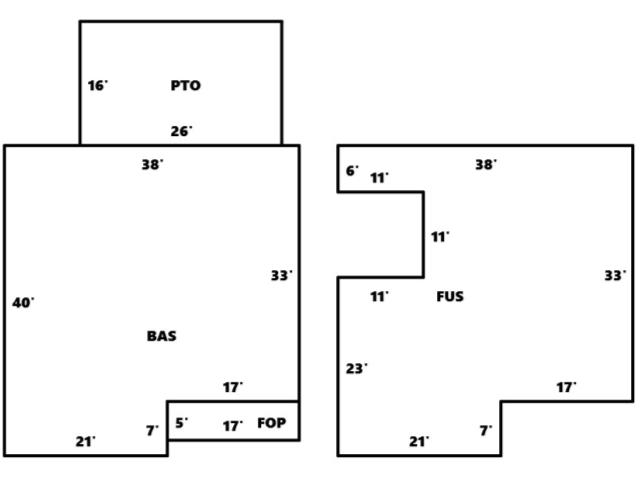
HEATED AREA 2,681
NOTES
 
SUBAREA
TYPE GS AREA % RPL CS
BAS 1,401 100 117124
FOP 85 030 2174
FUS 1,280 090 96307
PTO 416 005 1756
FIREPLACE 1 - None 0
SUBAREA TOTALS 3,182   217,361
CODE DESCRIPTION COUNT LTH WTH UNITS UNIT PRICE ORIG % COND BLDG# AYB EYB ANN DEP RATE OVR % COND OB/XF DEPR. VALUE
22 CONCRETE PAVING   0 0 1,400 3.50 0 _ 2019 2019 S3   100 4900
TOTAL OB/XF VALUE 4,900
BUILDING DIMENSIONS BAS=N7E17N33W38S40E21Area:1401;FOP=W17S5E17N5Area:85;PTO=N16W26S16E26Area:416;FUS=W38S6E11S11W11S23E21N7E17N33Area:1280; ;TotalArea:3182  
LAND INFORMATION
HIGHEST AND BEST USE USE CODE LOCAL ZONING FRON TAGE DEPTH DEPTH / SIZE LND MOD COND FACT OTHER ADJUSTMENTS AND NOTES
  RF   AC   LC  TO  OT
ROAD
TYPE
LAND UNIT PRICE TOTAL LAND UNITS UNT TYP TOTAL ADJST ADJUSTED UNIT PRICE LAND VALUE OVERRIDE VALUE LAND NOTES
SFR 0100 R60 0 0 1.0000 0 1.0000
  
PS 36,000.00 1.000 LT 1.000 36,000.00 36000 0  
TOTAL MARKET LAND DATA     36,000  
TOTAL PRESENT USE DATA