BRUNSWICK COUNTY 4/4/2026 6:27:19 AM
BAHL FARMS INC   Return/Appeal Notes:   Parcel: 232NL01102
147 OCEAN BLVD W SUPPLY 28462 HOLDEN BEACH PLAT: / UNIQ ID 93478
80090530     ID NO: 202617100275
BRUNSWICK COUNTY (100), HOLDEN BEACH (100), TRI-BEACH FIRE (331)        CARD NO. 1 of 1  
Reval Year: 2019 Tax Year: 2021 L-77 & 78 B-1 S-A SE HOLDEN PLAT 3/28 2.0000 LT   SRC=  
Appraised by 53 on 08/02/2018 5005 HOLDEN BEACH ISLAND TW-05 CI-13 FR-19 EX- AT- LAST ACTION 20200127
CONSTRUCTION DETAIL MARKET VALUE   DEPRECIATION CORRELATION OF VALUE
Foundation - 3
Piers>8ft w/Con 10.00
Sub Floor System - 4
Plywd/Ptl bd 8.00
Exterior Walls - 10
Aluminum/Vinyl Siding 30.00
Roofing Structure - 03
Gable 7.00
Roofing Cover - 03
Composition Shingle 4.00
Interior Wall Construction - 4
Plywood Panel 18.00
Interior Floor Cover - 08
Vinyl 7.00
Interior Floor Cover - 14
Carpet 0.00
Heating Fuel - 04
Electric 1.00
Heating Type - 04
Forced Air - Ducted 4.00
Air Conditioning Type - 03
Central 4.00
Bedrooms/Bathrooms/Half-Bathrooms
4/2/0 14.000
Bedrooms
BAS - 4 FUS - 0 LL - 0 _
Bathrooms
BAS - 2 FUS - 0 LL - 0 _
Half-Bathrooms
BAS - 0 FUS - 0 LL - 0 _
Office
BAS - 0 FUS - 0 LL - 0 0
TOTAL POINT VALUE 107.000
BUILDING ADJUSTMENTS
Market/Design 05 1.00 1.0000
Quality 3 AVERAGE 1.0000
Size Size Size 0.9500
Construction Factor 05 1.00 1.0000
TOTAL ADJUSTMENT FACTOR 0.950
TOTAL QUALITY INDEX 102
USE MOD Eff. Area QUAL BASE RATE RCN EYB AYB
   Standard  0.41000
CREDENCE TO MARKET
07 01 2,576 102 128.52 331068 1978 1970 % GOOD 59.0
DEPR. BUILDING VALUE - CARD 195,330
TYPE: SINGLE FAMILY BEACH SFR CONSTRUCTION
STYLE: 1 - 1.0 Story
 

Click on image to enlarge
DEPR. OB/XF VALUE - CARD 2,210
MARKET LAND VALUE - CARD 420,000
TOTAL MARKET VALUE - CARD 617,540
TOTAL APPRAISED VALUE - CARD 617,540
TOTAL APPRAISED VALUE - PARCEL 617,540
TOTAL PRESENT USE VALUE - PARCEL 0
TOTAL VALUE DEFERRED - PARCEL 0
TOTAL TAXABLE VALUE - PARCEL $ 617,540
PRIOR
BUILDING VALUE 177,300
OBXF VALUE 2,350
LAND VALUE 450,000
PRESENT USE VALUE 0
DEFERRED VALUE 0
TOTAL VALUE 629,650
PERMIT
CODE DATE NOTE NUMBER AMOUNT
ROUT: WTRSHD:
SALES DATA
OFF. RECORD DATE DEED TYPE Q/U V/I INDICATE SALES PRICE
BOOK PAGE MO YR
05004 1277 4 2023 GW Q I 1031500
00934 0079 6 1993 WD U V 185000
HEATED AREA 2,344
NOTES
EST
REVAL ST#033442

07ST#44844
SUBAREA
TYPE GS AREA % RPL CS
BAS 1,456 100 187125
FOP 544 030 20949
LLF 888 085 97033
LLU 576 020 14780
UOP 384 020 9896
WDD 48 020 1285
FIREPLACE 1 - None 0
SUBAREA TOTALS 3,896   331,068
CODE DESCRIPTION COUNT LTH WTH UNITS UNIT PRICE ORIG % COND BLDG# AYB EYB ANN DEP RATE OVR % COND OB/XF DEPR. VALUE
27 DECK   56 4 224 17.00 0 1 2005 2005 S3   58 2209
TOTAL OB/XF VALUE 2,209
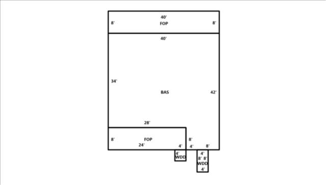
BUILDING DIMENSIONS FOP=W40S8E40N8Area:320;BAS=S34E28S8E4E8N42W40Area:1456;FOP=S8E24E4N8W28Area:224;WDD=S4E4N4W4Area:16;WDD=S8E4N8W4Area:32; ;LLF=Area:504;LLU=Area:576;UOP=Area:384;LLF=Area:384;TotalArea:3896  
LAND INFORMATION
HIGHEST AND BEST USE USE CODE LOCAL ZONING FRON TAGE DEPTH DEPTH / SIZE LND MOD COND FACT OTHER ADJUSTMENTS AND NOTES
  RF   AC   LC  TO  OT
ROAD
TYPE
LAND UNIT PRICE TOTAL LAND UNITS UNT TYP TOTAL ADJST ADJUSTED UNIT PRICE LAND VALUE OVERRIDE VALUE LAND NOTES
SFR OCEAN 0107 R1 50 250 1.0000 0 1.0000
  CAMA
PS 420,000.00 1.000 LT 1.000 420,000.00 420000 0  
TOTAL MARKET LAND DATA     420,000  
TOTAL PRESENT USE DATA