BRUNSWICK COUNTY 4/4/2026 12:49:11 AM
KNOX WESTON CHARLES ET        KNOX AMANDA Return/Appeal Notes:   Parcel: 1400000406
660 GREEN LEWIS RD SE BOLIVIA 28422 COUNTY PLAT: / UNIQ ID 28353
22386665   ** REVIEW SKETCH ** ID NO: 216119514431
BOLIVIA FIRE (300), BRUNSWICK COUNTY (100)        CARD NO. 1 of 1  
Reval Year: 2019 Tax Year: 2022 2.40 AC CHARLES E. KNOX PL 23/473 SR-1512 2.4000 AC   SRC=  
Appraised by 05 on 09/07/2018 2006 BOLIVIA CENTRAL TW-02 CI-00 FR-03 EX- AT- LAST ACTION 20180907
CONSTRUCTION DETAIL MARKET VALUE   DEPRECIATION CORRELATION OF VALUE
Foundation - 1
Piers 5.00
Sub Floor System - 4
Plywd/Ptl bd 11.00
Exterior Walls - 10
Aluminum/Vinyl Siding 34.00
Roofing Structure - 03
Gable 9.00
Roofing Cover - 03
Composition Shingle 4.00
Interior Wall Construction - 5
Drywall/Sheetrock 28.00
Interior Floor Cover - 08
Vinyl 7.00
Interior Floor Cover - 14
Carpet 0.00
Heating Fuel - 04
Electric 1.00
Heating Type - 09
Heat Pump Only 4.00
Air Conditioning Type - 03
Central 2.00
Bedrooms/Bathrooms/Half-Bathrooms
3/2/0 0.000
Bedrooms
BAS - 3 FUS - 0 LL - 0 _
Bathrooms
BAS - 2 FUS - 0 LL - 0 _
Half-Bathrooms
BAS - 0 FUS - 0 LL - 0 _
Office
BAS - 0 FUS - 0 LL - 0 0
TOTAL POINT VALUE 105.000
BUILDING ADJUSTMENTS
Market/Design 05 1.00 1.0000
Quality 3 AVERAGE 1.0000
Size Size Size 1.0000
Construction Factor 05 1.00 1.0000
TOTAL ADJUSTMENT FACTOR 1.000
TOTAL QUALITY INDEX 105
USE MOD Eff. Area QUAL BASE RATE RCN EYB AYB
   Standard  0.27000
CREDENCE TO MARKET
02 02 1,491 105 60.90 90802 2003 1994 % GOOD 73.0
DEPR. BUILDING VALUE - CARD 66,290
TYPE: DOUBLE WIDE MANUFACTURED HOME
STYLE: 1 - 1.0 Story
 

Click on image to enlarge
DEPR. OB/XF VALUE - CARD 2,700
MARKET LAND VALUE - CARD 35,620
TOTAL MARKET VALUE - CARD 104,610
TOTAL APPRAISED VALUE - CARD 104,610
TOTAL APPRAISED VALUE - PARCEL 104,610
TOTAL PRESENT USE VALUE - PARCEL 0
TOTAL VALUE DEFERRED - PARCEL 0
TOTAL TAXABLE VALUE - PARCEL $ 104,610
PRIOR
BUILDING VALUE 61,450
OBXF VALUE 2,700
LAND VALUE 25,440
PRESENT USE VALUE 0
DEFERRED VALUE 0
TOTAL VALUE 89,590
PERMIT
CODE DATE NOTE NUMBER AMOUNT
ROUT: WTRSHD:
SALES DATA
OFF. RECORD DATE DEED TYPE Q/U V/I INDICATE SALES PRICE
BOOK PAGE MO YR
01436 1378 2 2001 WD U V 0
HEATED AREA 1,456
NOTES
1981 SWMH 12X60


07ST#4565
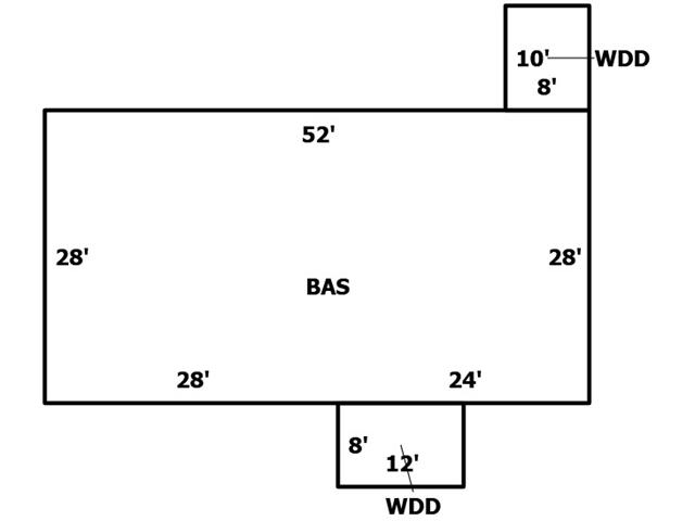
SUBAREA
TYPE GS AREA % RPL CS
BAS 1,456 100 88670
WDD 176 020 2132
FIREPLACE 1 - None 0
SUBAREA TOTALS 1,632   90,802
CODE DESCRIPTION COUNT LTH WTH UNITS UNIT PRICE ORIG % COND BLDG# AYB EYB ANN DEP RATE OVR % COND OB/XF DEPR. VALUE
56 MOBILE HOME SITE   0 0 1 2,700.00 0 1 2005 2005 S0   100 2700
55 MOBILE HOME(PER/PRP)   0 0 1 0.00 0 1 2005 2005 S0   100 0
TOTAL OB/XF VALUE 2,700
BUILDING DIMENSIONS WDD=W8S10E8N10Area:80;BAS=W52S28E28E24N28Area:1456;WDD=S8E12N8W12Area:96;TotalArea:1632  
LAND INFORMATION
HIGHEST AND BEST USE USE CODE LOCAL ZONING FRON TAGE DEPTH DEPTH / SIZE LND MOD COND FACT OTHER ADJUSTMENTS AND NOTES
  RF   AC   LC  TO  OT
ROAD
TYPE
LAND UNIT PRICE TOTAL LAND UNITS UNT TYP TOTAL ADJST ADJUSTED UNIT PRICE LAND VALUE OVERRIDE VALUE LAND NOTES
RES RU ACR 0110 R75 238 0 1.9800 4 1.0700 +07 +00 +00 +00 +00  SP 7,000.00 2.400 AC 2.120 14,840.00 35616    
TOTAL MARKET LAND DATA 2.400   35,620  
TOTAL PRESENT USE DATA