BRUNSWICK COUNTY 4/4/2026 3:46:10 AM
CENTER 129 LLC   Return/Appeal Notes:   Parcel: 250AD00103
105 SE 58TH ST UNIT 1103 OAK ISLAND 28465 OAK ISLAND PLAT: 0010/0368 UNIQ ID 128365
30214240     ID NO: 207505099590.0003
BRUNSWICK COUNTY (100), DOSHER HOSP TAX (100), OAK ISLAND (100), OAK ISLAND FIRE (360)        CARD NO. 1 of 1  
Reval Year: 2019 Tax Year: 2022 BLDG-1000 U-1103 PH-1 OCEAN WALK PL 10/368 1.0000 UT   SRC=  
Appraised by 05 on 09/07/2018 X327 OCEAN WALK- OI DR- 58TH- PELICAN TW-03 CI-14 FR-08 EX- AT- LAST ACTION 20180907
CONSTRUCTION DETAIL MARKET VALUE   DEPRECIATION CORRELATION OF VALUE
Foundation - 5
Spread Footing 6.00
Sub Floor System - 4
Plywd/Ptl bd 6.00
Exterior Walls - 16
Wood/Vinyl Shingle 26.00
Roofing Structure - 08
Wood Truss 4.00
Roofing Cover - 13
Metal Standing Sea 8.00
Interior Wall Construction - 5
Drywall/Sheetrock 28.00
Interior Floor Cover - 12
Hardwood 12.00
Interior Floor Cover - 14
Carpet 0.00
Heating Fuel - 04
Electric 1.00
Heating Type - 09
Heat Pump Only 4.00
Air Conditioning Type - 03
Central 4.00
Structural Frame - 02
Wood Frame 5.00
Ceiling & Insulation - 06
Not Suspended - Ceiling & Walls Insulated 0.00
Floor Number - 1
Floor 0.00
Unit Location - IV
Interior w/View 0.00
Unit Count - 18
Units 0.00
Bedrooms/Bathrooms/Half-Bathrooms
4/4/0 15.000
Bedrooms
BAS - 4 FUS - 0 LL - 0 _
Bathrooms
BAS - 4 FUS - 0 LL - 0 _
Half-Bathrooms
BAS - 0 FUS - 0 LL - 0 _
Office
BAS - 0 FUS - 0 LL - 0 0
TOTAL POINT VALUE 119.000
BUILDING ADJUSTMENTS
Market/Design 04   1.0500
Quality 3 Average 1.0000
Size Size Size 0.9500
TOTAL ADJUSTMENT FACTOR 1.000
TOTAL QUALITY INDEX 119
USE MOD Eff. Area QUAL BASE RATE RCN EYB AYB
   Standard  0.09000
CREDENCE TO MARKET
06 03 2,337 119 142.80 333723 2010 2005 % GOOD 91.0
DEPR. BUILDING VALUE - CARD 371,190
TYPE: CONDOMINIUM, BEACH MFR CONSTRUCTION
STYLE: 1 - 1.0 Story
 

Click on image to enlarge
DEPR. OB/XF VALUE - CARD 3,290
MARKET LAND VALUE - CARD 0
TOTAL MARKET VALUE - CARD 374,480
TOTAL APPRAISED VALUE - CARD 374,480
TOTAL APPRAISED VALUE - PARCEL 374,480
TOTAL PRESENT USE VALUE - PARCEL 0
TOTAL VALUE DEFERRED - PARCEL 0
TOTAL TAXABLE VALUE - PARCEL $ 374,480
PRIOR
BUILDING VALUE 316,850
OBXF VALUE 3,440
LAND VALUE 0
PRESENT USE VALUE 0
DEFERRED VALUE 0
TOTAL VALUE 320,290
PERMIT
CODE DATE NOTE NUMBER AMOUNT
ROUT: WTRSHD:
SALES DATA
OFF. RECORD DATE DEED TYPE Q/U V/I INDICATE SALES PRICE
BOOK PAGE MO YR
03898 0271 4 2017 TR* I I 180500
03167 0403 6 2011 WD U I 0
02523 0930 12 2006 WD U I 400000
02066 1364 12 2004 WD U V 0
HEATED AREA 2,184
NOTES
BLD 1000,UNITS-1104 & 1103
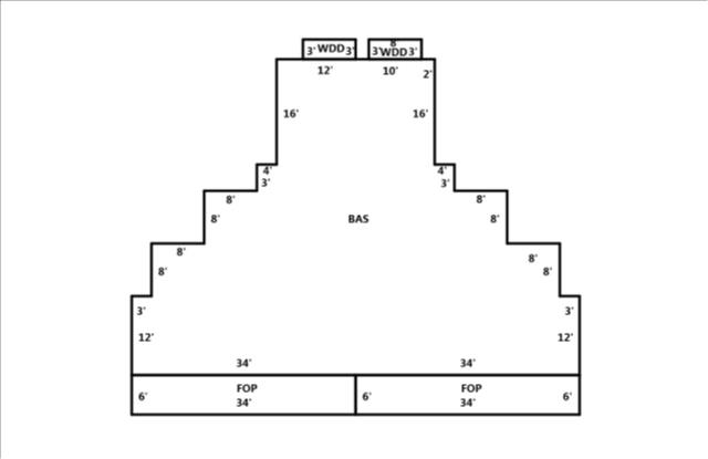
SUBAREA
TYPE GS AREA % RPL CS
BAS 2,184 100 311875
FOP 408 035 20420
WDD 48 020 1428
FIREPLACE 1 - None 0
SUBAREA TOTALS 2,640   333,723
CODE DESCRIPTION COUNT LTH WTH UNITS UNIT PRICE ORIG % COND BLDG# AYB EYB ANN DEP RATE OVR % COND OB/XF DEPR. VALUE
90 SPRINKLER SYSTEM   0 0 2,184 1.75 0 1 2005 2005 S1   86 3287
TOTAL OB/XF VALUE 3,287
BUILDING DIMENSIONS BAS=E34N12W3N8W8N8W8N4W3N16W2W10W12S16W3S4W8S8W8S8W3S12E34Area:2184;WDD=N3W8S3E8Area:24;FOP=W34S6E34N6Area:204;WDD=N3W8S S3E8Area:24;FOP=S6W34N6E34Area:204;TotalArea:2640  
LAND INFORMATION
HIGHEST AND BEST USE USE CODE LOCAL ZONING FRON TAGE DEPTH DEPTH / SIZE LND MOD COND FACT OTHER ADJUSTMENTS AND NOTES
  RF   AC   LC  TO  OT
ROAD
TYPE
LAND UNIT PRICE TOTAL LAND UNITS UNT TYP TOTAL ADJST ADJUSTED UNIT PRICE LAND VALUE OVERRIDE VALUE LAND NOTES
TOTAL MARKET LAND DATA        
TOTAL PRESENT USE DATA