BRUNSWICK COUNTY 11/5/2025 5:23:39 PM
KIDD BEVERLY L   Return/Appeal Notes:   Parcel: 234PD002
3624 W. BEACH DR OAK ISLAND 28465 OAK ISLAND PLAT: 00000/00000 UNIQ ID 100068
80112865     ID NO: 204618305937
BRUNSWICK COUNTY (100), DOSHER HOSP TAX (100), OAK ISLAND (100), OAK ISLAND FIRE (180)        CARD NO. 1 of 1  
Reval Year: 2019 Tax Year: 2022 L-W50' 10 B-103 S-4 LB PLAT 5/50 1.0000 LT   SRC=  
Appraised by 85 on 08/04/2021 306A LONG BEACH WEST TW-03 CI-14 FR-08 EX- AT- LAST ACTION 20210805
CONSTRUCTION DETAIL MARKET VALUE   DEPRECIATION CORRELATION OF VALUE
Foundation - 2
Piers>8ft 8.00
Sub Floor System - 4
Plywd/Ptl bd 8.00
Exterior Walls - 10
Aluminum/Vinyl Siding 30.00
Roofing Structure - 03
Gable 7.00
Roofing Cover - 03
Composition Shingle 4.00
Interior Wall Construction - 4
Plywood Panel 19.00
Interior Wall Construction - 5
Drywall/Sheetrock 0.00
Interior Floor Cover - 09
Pine or Soft Woods 6.00
Heating Fuel - 04
Electric 1.00
Heating Type - 09
Heat Pump Only 4.00
Air Conditioning Type - 03
Central 4.00
Bedrooms/Bathrooms/Half-Bathrooms
3/1/1 10.000
Bedrooms
BAS - 3 FUS - 0 LL - 0 _
Bathrooms
BAS - 1 FUS - 0 LL - 0 _
Half-Bathrooms
BAS - 1 FUS - 0 LL - 0 _
Office
BAS - 0 FUS - 0 LL - 0 0
TOTAL POINT VALUE 101.000
BUILDING ADJUSTMENTS
Market/Design 09 .20 1.2000
Quality 3 AVERAGE 1.0000
Size Size Size 1.0000
Construction Factor 05 1.00 1.0000
TOTAL ADJUSTMENT FACTOR 1.200
TOTAL QUALITY INDEX 121
USE MOD Eff. Area QUAL BASE RATE RCN EYB AYB
   Standard  0.49000
CREDENCE TO MARKET
07 01 1,122 121 152.46 171059 1970 1957 % GOOD 51.0
DEPR. BUILDING VALUE - CARD 87,240
TYPE: SINGLE FAMILY BEACH SFR CONSTRUCTION
STYLE: 1 - 1.0 Story
 

Click on image to enlarge
DEPR. OB/XF VALUE - CARD 0
MARKET LAND VALUE - CARD 185,000
TOTAL MARKET VALUE - CARD 272,240
TOTAL APPRAISED VALUE - CARD 272,240
TOTAL APPRAISED VALUE - PARCEL 272,240
TOTAL PRESENT USE VALUE - PARCEL 0
TOTAL VALUE DEFERRED - PARCEL 0
TOTAL TAXABLE VALUE - PARCEL $ 272,240
PRIOR
BUILDING VALUE 63,790
OBXF VALUE 0
LAND VALUE 175,000
PRESENT USE VALUE 0
DEFERRED VALUE 0
TOTAL VALUE 238,790
PERMIT
CODE DATE NOTE NUMBER AMOUNT
ROUT: WTRSHD:
SALES DATA
OFF. RECORD DATE DEED TYPE Q/U V/I INDICATE SALES PRICE
BOOK PAGE MO YR
04645 1112 6 2021 GW* X I 280000
01240 0683 8 1998 WD U V 0
HEATED AREA 1,128
NOTES
ST#5289
07ST#49331
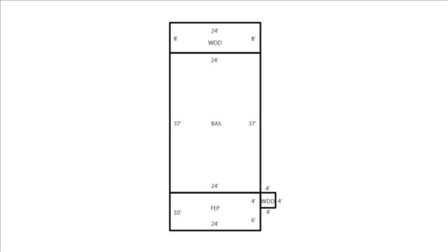
SUBAREA
TYPE GS AREA % RPL CS
BAS 888 100 135384
FEP 240 080 29272
WDD 208 020 6403
FIREPLACE 1 - None 0
SUBAREA TOTALS 1,336   171,059
CODE QUALITY DESCRIPTION COUNT LTH WTH UNITS UNIT PRICE ORIG % COND BLDG# SIZE FACT AYB EYB ANN DEP RATE OVR % COND OB/XF DEPR. VALUE
TOTAL OB/XF VALUE 0
BUILDING DIMENSIONS WDD=W24S8E24N8Area:192;BAS=W24S37E24N37Area:888;FEP=S10E24N6N4W24Area:240;WDD=E4N4W4S4Area:16;TotalArea:1336  
LAND INFORMATION
HIGHEST AND BEST USE USE CODE LOCAL ZONING FRON TAGE DEPTH DEPTH / SIZE LND MOD COND FACT OTHER ADJUSTMENTS AND NOTES
  RF   AC   LC  TO  OT
ROAD
TYPE
LAND UNIT PRICE TOTAL LAND UNITS UNT TYP TOTAL ADJST ADJUSTED UNIT PRICE LAND VALUE OVERRIDE VALUE LAND NOTES
SFR 2NDROW 0105 R7 50 150 1.0000 0 1.0000
  
PS 185,000.00 1.000 LT 1.000 185,000.00 185000 0  
TOTAL MARKET LAND DATA     185,000  
TOTAL PRESENT USE DATA