BRUNSWICK COUNTY 4/4/2026 3:29:04 AM
REEVES DEBRA   Return/Appeal Notes:   Parcel: 037BH029
9151 HIGHLAND HILLS DR LELAND 28451 LELAND PLAT: 00000/00000 UNIQ ID 149303
80124180     ID NO: 218708985370
BRUNSWICK COUNTY (100), LELAND (100), LELAND FIRE (100)        CARD NO. 1 of 1  
Reval Year: 2023 Tax Year: 2023 L-29 HIGHLAND HILLS PLAT N/377 1.0000 LT   SRC=  
Appraised by 03 on 09/14/2022 202J PICKET RIDGE / HIGHLAND HILLS TW-02 CI-31 FR-07 EX- AT- LAST ACTION 20220914
CONSTRUCTION DETAIL MARKET VALUE   DEPRECIATION CORRELATION OF VALUE
Foundation - 1
Piers 5.00
Sub Floor System - 4
Plywd/Ptl bd 11.00
Exterior Walls - 10
Aluminum/Vinyl Siding 34.00
Roofing Structure - 03
Gable 9.00
Roofing Cover - 03
Composition Shingle 4.00
Interior Wall Construction - 5
Drywall/Sheetrock 28.00
Interior Floor Cover - 08
Vinyl 7.00
Interior Floor Cover - 14
Carpet 0.00
Heating Fuel - 04
Electric 1.00
Heating Type - 09
Heat Pump Only 4.00
Air Conditioning Type - 03
Central 2.00
Bedrooms/Bathrooms/Half-Bathrooms
2/2/0 0.000
Bedrooms
BAS - 2 FUS - 0 LL - 0 _
Bathrooms
BAS - 2 FUS - 0 LL - 0 _
Half-Bathrooms
BAS - 0 FUS - 0 LL - 0 _
Office
BAS - 0 FUS - 0 LL - 0 0
TOTAL POINT VALUE 105.000
BUILDING ADJUSTMENTS
Market/Design 11 .30 1.3000
Quality 3 AVERAGE 1.0000
Size Size Size 1.0400
Construction Factor 05 1.00 1.0000
TOTAL ADJUSTMENT FACTOR 1.350
TOTAL QUALITY INDEX 142
USE MOD Eff. Area QUAL BASE RATE RCN EYB AYB
   Standard  0.35000
CREDENCE TO MARKET
03 02 1,022 142 113.60 116099 2008 1983 % GOOD 65.0
DEPR. BUILDING VALUE - CARD 75,460
TYPE: SINGLE WIDE AS REAL MANUFACTURED HOME
STYLE: 1 - 1.0 Story
 

Click on image to enlarge
DEPR. OB/XF VALUE - CARD 1,590
MARKET LAND VALUE - CARD 30,000
TOTAL MARKET VALUE - CARD 107,050
TOTAL APPRAISED VALUE - CARD 107,050
TOTAL APPRAISED VALUE - PARCEL 107,050
TOTAL PRESENT USE VALUE - PARCEL 0
TOTAL VALUE DEFERRED - PARCEL 0
TOTAL TAXABLE VALUE - PARCEL $ 107,050
PRIOR
BUILDING VALUE 11,740
OBXF VALUE 2,400
LAND VALUE 18,000
PRESENT USE VALUE 0
DEFERRED VALUE 0
TOTAL VALUE 32,140
PERMIT
CODE DATE NOTE NUMBER AMOUNT
ROUT: WTRSHD:
SALES DATA
OFF. RECORD DATE DEED TYPE Q/U V/I INDICATE SALES PRICE
BOOK PAGE MO YR
05517 0858 3 2026 GW U I 120000
04807 1260 3 2022 WD* Q I 115000
04121 0093 11 2018 QC U I 0
02862 0740 12 2008 WD U I 0
00637 0307 2 1986 WD U V 0
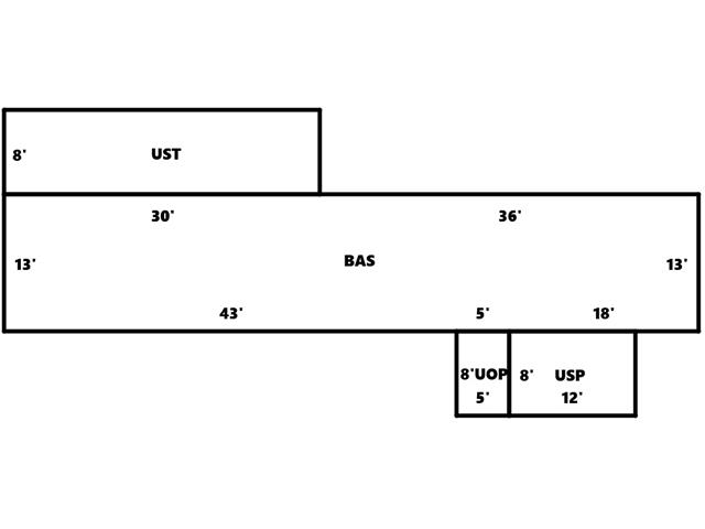
HEATED AREA 858
NOTES
 
SUBAREA
TYPE GS AREA % RPL CS
BAS 858 100 97469
UOP 40 020 909
USP 96 025 2726
UST 240 055 14995
FIREPLACE 1 - None 0
SUBAREA TOTALS 1,234   116,099
CODE DESCRIPTION COUNT LTH WTH UNITS UNIT PRICE ORIG % COND BLDG# AYB EYB ANN DEP RATE OVR % COND OB/XF DEPR. VALUE
85 STORAGE/UTILITY   9 12 108 20.00 0 _ 1985 1985 S3   20 432
85 STORAGE/UTILITY   9 10 90 20.00 0 _ 1985 1985 S3   20 360
78 SHED-ENCLOSED   9 12 108 22.00 0 _ 1985 1985 S3   20 475
15 CARPORT (METAL)   20 20 400 4.00 0 _ 1990 1990 S5   20 320
TOTAL OB/XF VALUE 1,587
BUILDING DIMENSIONS BAS=W36W30S13E43E5E18N13Area:858;UST=W30N8E30S8Area:240;UOP=S8E5N8W5Area:40;USP=S8E12N8W12Area:96;TotalArea:1234  
LAND INFORMATION
HIGHEST AND BEST USE USE CODE LOCAL ZONING FRON TAGE DEPTH DEPTH / SIZE LND MOD COND FACT OTHER ADJUSTMENTS AND NOTES
  RF   AC   LC  TO  OT
ROAD
TYPE
LAND UNIT PRICE TOTAL LAND UNITS UNT TYP TOTAL ADJST ADJUSTED UNIT PRICE LAND VALUE OVERRIDE VALUE LAND NOTES
MH SUBDIV 0200 R15 0 0 1.0000 0 1.0000
  
PS 30,000.00 1.000 LT 1.000 30,000.00 30000    
TOTAL MARKET LAND DATA     30,000  
TOTAL PRESENT USE DATA