BRUNSWICK COUNTY 11/4/2025 10:11:24 PM
DWYER CHRISTOPHER CHAD ET        DWYER GWENDOLYN AND Return/Appeal Notes:   Parcel: 2641E018
37 HORSEMINT TRL SOUTHPORT 28461 BALD HEAD ISLAND PLAT: / UNIQ ID 140435
80085561     ID NO: 300403234087
BHI MSD ZONE B (100), BRUNSWICK COUNTY (100), DOSHER HOSP TAX (100), VILLAGE OF BHI (100)        CARD NO. 1 of 1  
Reval Year: 2023 Tax Year: 2023 L-623 BHI STAGE I PLAT 12/1-9 1.0000 LT   SRC= Inspection
Appraised by 03 on 10/19/2022 406F BHI - WEST BALD HEAD WYND TW-03 CI-34 FR-01 EX- AT- LAST ACTION 20221019
CONSTRUCTION DETAIL MARKET VALUE   DEPRECIATION CORRELATION OF VALUE
Foundation - 1
Piers 2.00
Sub Floor System - 4
Plywd/Ptl bd 8.00
Exterior Walls - 09
Wood on Sheathing or Plywood 30.00
Roofing Structure - 08
Wood Truss 7.00
Roofing Cover - 06
Arch Shingle 5.00
Interior Wall Construction - 5
Drywall/Sheetrock 21.00
Interior Floor Cover - 14
Carpet 8.00
Heating Fuel - 04
Electric 1.00
Heating Type - 09
Heat Pump Only 4.00
Air Conditioning Type - 03
Central 4.00
Bedrooms/Bathrooms/Half-Bathrooms
3/2/1 13.000
Bedrooms
BAS - 3 FUS - 0 LL - 0 _
Bathrooms
BAS - 2 FUS - 0 LL - 0 _
Half-Bathrooms
BAS - 1 FUS - 0 LL - 0 _
Office
BAS - 0 FUS - 0 LL - 0 0
TOTAL POINT VALUE 103.000
BUILDING ADJUSTMENTS
Market/Design 07 .10 1.1000
Quality 4 ABOVE AVERAGE 1.1000
Size Size SIZE 0.9500
Construction Factor 05 1.00 1.0000
TOTAL ADJUSTMENT FACTOR 1.150
TOTAL QUALITY INDEX 118
USE MOD Eff. Area QUAL BASE RATE RCN EYB AYB
   Standard  0.30000
CREDENCE TO MARKET
94 01 2,186 118 354.00 775824 1993 1983 % GOOD 70.0
DEPR. BUILDING VALUE - CARD 543,080
TYPE: SFR-BHI SFR CONSTRUCTION
STYLE: 1 - 1.0 Story
 

Click on image to enlarge
DEPR. OB/XF VALUE - CARD 4,090
MARKET LAND VALUE - CARD 90,000
TOTAL MARKET VALUE - CARD 637,170
TOTAL APPRAISED VALUE - CARD 637,170
TOTAL APPRAISED VALUE - PARCEL 637,170
TOTAL PRESENT USE VALUE - PARCEL 0
TOTAL VALUE DEFERRED - PARCEL 0
TOTAL TAXABLE VALUE - PARCEL $ 637,170
PRIOR
BUILDING VALUE 325,210
OBXF VALUE 2,430
LAND VALUE 85,000
PRESENT USE VALUE 0
DEFERRED VALUE 0
TOTAL VALUE 412,640
PERMIT
CODE DATE NOTE NUMBER AMOUNT
ROUT: WTRSHD:
SALES DATA
OFF. RECORD DATE DEED TYPE Q/U V/I INDICATE SALES PRICE
BOOK PAGE MO YR
05200 0659 6 2024 GW* Q I 930000
04228 0269 8 2019 GW* Q I 525500
03152 0427 4 2011 SL U I 425000
03054 0417 6 2010 FC U I 625000
02824 0335 7 2008 WD U I 0
02816 0304 7 2008 WD U I 0
00533 0924 6 1983 WD U I 0
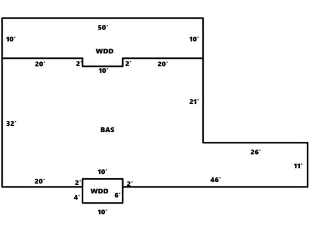
HEATED AREA 1,846
NOTES
FIR SIDING
07ST#VISUAL
SUBAREA
TYPE GS AREA % RPL CS
BAS 1,846 100 653484
FGD* 324 050 57348
LLU* 312 020 21948
WDD 580 020 41064
FIREPLACE 7 - Prefab 1,980
SUBAREA TOTALS 3,062   775,824
CODE DESCRIPTION COUNT LTH WTH UNITS UNIT PRICE ORIG % COND BLDG# AYB EYB ANN DEP RATE OVR % COND OB/XF DEPR. VALUE
27 DECK   50 8 400 24.00 0 1 1995 1995 S3   40 3840
22 CONCRETE PAVING   0 0 276 4.50 0 1 1983 1983 S3   20 248
TOTAL OB/XF VALUE 4,088
BUILDING DIMENSIONS WDD=W50S10E20S2E10N2E20N10Area:520;BAS=W20S2W10N2W20S32E20N2E10S2E46N11W26N21Area:1846;WDD=S4E10N6W10S2Area:60;LLU=Area: :312;FGD=Area:324;TotalArea:3062  
LAND INFORMATION
HIGHEST AND BEST USE USE CODE LOCAL ZONING FRON TAGE DEPTH DEPTH / SIZE LND MOD COND FACT OTHER ADJUSTMENTS AND NOTES
  RF   AC   LC  TO  OT
ROAD
TYPE
LAND UNIT PRICE TOTAL LAND UNITS UNT TYP TOTAL ADJST ADJUSTED UNIT PRICE LAND VALUE OVERRIDE VALUE LAND NOTES
SFR GOLF 0140 PD-1 0 0 1.0000 0 1.0000
  LOC
PS 90,000.00 1.000 LT 1.000 90,000.00 90000    
TOTAL MARKET LAND DATA     90,000  
TOTAL PRESENT USE DATA