BRUNSWICK COUNTY 11/5/2025 5:15:19 PM
KIDD KENNETH R ET        KIDd CAROL A Return/Appeal Notes:   Parcel: 220HA014
4127 SOUTH LAGOON CT SOUTHPORT 28461 ST JAMES PLAT: / UNIQ ID 72833
53177820     ID NO: 206704918931
BRUNSWICK COUNTY (100), ST JAMES (100)      St. James HOA Exclusion CARD NO. 1 of 1  
Reval Year: 2023 Tax Year: 2023 L-14 S-31 ST JAMES PLANT PH-II PLAT 19/36 1.0000 LT   SRC=  
Appraised by 76 on 10/21/2022 307J STJ - MEMBERS CLUB TW-05 CI-29 FR-23 EX- AT- LAST ACTION 20221021
CONSTRUCTION DETAIL MARKET VALUE   DEPRECIATION CORRELATION OF VALUE
Foundation - 4
Con Ftg/Crawl 5.00
Sub Floor System - 4
Plywd/Ptl bd 8.00
Exterior Walls - 19
Hardy Plank 32.00
Roofing Structure - 03
Gable 7.00
Roofing Cover - 06
Arch Shingle 5.00
Interior Wall Construction - 6
Custom Interior 35.00
Interior Floor Cover - 12
Hardwood 10.00
Interior Floor Cover - 14
Carpet 0.00
Heating Fuel - 03
Gas 1.00
Heating Type - 09
Heat Pump Only 4.00
Air Conditioning Type - 03
Central 4.00
Bedrooms/Bathrooms/Half-Bathrooms
3/2/1 13.000
Bedrooms
BAS - 1 FUS - 2 LL - 0 _
Bathrooms
BAS - 1 FUS - 1 LL - 0 _
Half-Bathrooms
BAS - 1 FUS - 0 LL - 0 _
Office
BAS - 0 FUS - 0 LL - 0 0
TOTAL POINT VALUE 124.000
BUILDING ADJUSTMENTS
Market/Design 07 .10 1.1000
Quality 4 ABOVE AVERAGE 1.1000
Size Size SIZE 0.8000
Construction Factor 05 1.00 1.0000
TOTAL ADJUSTMENT FACTOR 0.970
TOTAL QUALITY INDEX 120
USE MOD Eff. Area QUAL BASE RATE RCN EYB AYB
   Standard  0.10000
CREDENCE TO MARKET
01 01 3,446 120 144.00 498204 2011 2005 % GOOD 90.0
DEPR. BUILDING VALUE - CARD 448,380
TYPE: SINGLE FAMILY RESIDENTIAL SFR CONSTRUCTION
STYLE: 2 - 1.5 Stories
 

Click on image to enlarge
DEPR. OB/XF VALUE - CARD 2,650
MARKET LAND VALUE - CARD 178,000
TOTAL MARKET VALUE - CARD 629,030
TOTAL APPRAISED VALUE - CARD 629,030
TOTAL APPRAISED VALUE - PARCEL 629,030
TOTAL PRESENT USE VALUE - PARCEL 0
TOTAL VALUE DEFERRED - PARCEL 0
TOTAL TAXABLE VALUE - PARCEL $ 629,030
PRIOR
BUILDING VALUE 372,430
OBXF VALUE 2,600
LAND VALUE 107,500
PRESENT USE VALUE 0
DEFERRED VALUE 0
TOTAL VALUE 482,530
PERMIT
CODE DATE NOTE NUMBER AMOUNT
ROUT: WTRSHD:
SALES DATA
OFF. RECORD DATE DEED TYPE Q/U V/I INDICATE SALES PRICE
BOOK PAGE MO YR
01742 0008 5 2003 WD U V 76000
01124 1271 1 1997 WD Q V 73000
00558 0218 2 1984 WD U V 0
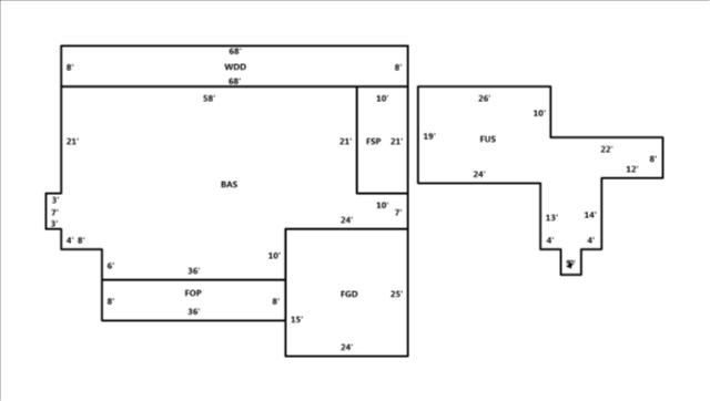
HEATED AREA 2,963
NOTES
 
SUBAREA
TYPE GS AREA % RPL CS
BAS 2,107 100 303408
FGD 600 050 43200
FOP 288 030 12384
FSP 210 035 10656
FUS 856 090 110880
WDD 544 020 15696
FIREPLACE 7 - Prefab 1,980
SUBAREA TOTALS 4,605   498,204
CODE DESCRIPTION COUNT LTH WTH UNITS UNIT PRICE ORIG % COND BLDG# AYB EYB ANN DEP RATE OVR % COND OB/XF DEPR. VALUE
22 CONCRETE PAVING   0 0 1,280 4.50 0 1 2005 2005 S3   46 2650
TOTAL OB/XF VALUE 2,650
BUILDING DIMENSIONS BAS=W58S21W3S7E3S4E8S6E36N10E24N7W10N21Area:2107;WDD=N8E68S8W68Area:544;FOP=S8E36N8W36Area:288;FGD=S15E24N25W24S10Area:6 600;FSP=W10N21E10S21Area:210;FUS=W22N10W26S19E24S13E4S5E4N5E4N14E12N8Area:856;TotalArea:4605  
LAND INFORMATION
HIGHEST AND BEST USE USE CODE LOCAL ZONING FRON TAGE DEPTH DEPTH / SIZE LND MOD COND FACT OTHER ADJUSTMENTS AND NOTES
  RF   AC   LC  TO  OT
ROAD
TYPE
LAND UNIT PRICE TOTAL LAND UNITS UNT TYP TOTAL ADJST ADJUSTED UNIT PRICE LAND VALUE OVERRIDE VALUE LAND NOTES
SFR GOLF 0140 EPUD 0 0 1.0000 0 1.0000   PS 178,000.00 1.000 LT 1.000 178,000.00 178000    
TOTAL MARKET LAND DATA     178,000  
TOTAL PRESENT USE DATA