BRUNSWICK COUNTY 4/5/2026 4:16:25 AM
WILLIAMS THOMAS ANDERSON ET        WILLIAMS AMANDA Return/Appeal Notes:   Parcel: 251NB020
108 CASWELL BEACH RD OAK ISLAND 28465 CASWELL BEACH PLAT: / UNIQ ID 131244
39977440     ID NO: 209514428954
BRUNSWICK COUNTY (100), CASWELL BEACH (100), DOSHER HOSP TAX (100), YAUPON BEACH FIRE (200)        CARD NO. 1 of 1  
Reval Year: 2023 Tax Year: 2023 L-17 B-1 S-B FT CASWELL BCH PLAT 1/123-126 1.0000 LT   SRC=  
Appraised by 53 on 01/26/2023 4005 CASWELL BEACH TW-03 CI-16 FR-22 EX- AT- LAST ACTION 20230126
CONSTRUCTION DETAIL MARKET VALUE   DEPRECIATION CORRELATION OF VALUE
Foundation - 3
Piers>8ft w/Con 10.00
Sub Floor System - 4
Plywd/Ptl bd 8.00
Exterior Walls - 17
Cedar or Redwood Siding 32.00
Roofing Structure - 07
Irregular Ceiling 13.00
Roofing Cover - 06
Arch Shingle 5.00
Interior Wall Construction - 5
Drywall/Sheetrock 28.00
Interior Wall Construction - 6
Custom Interior 0.00
Interior Floor Cover - 08
Vinyl 7.00
Interior Floor Cover - 14
Carpet 0.00
Heating Fuel - 04
Electric 1.00
Heating Type - 09
Heat Pump Only 4.00
Air Conditioning Type - 03
Central 4.00
Bedrooms/Bathrooms/Half-Bathrooms
3/2/1 13.000
Bedrooms
BAS - 3 FUS - 0 LL - 0 _
Bathrooms
BAS - 2 FUS - 0 LL - 0 _
Half-Bathrooms
BAS - 1 FUS - 0 LL - 0 _
Office
BAS - 0 FUS - 0 LL - 0 0
TOTAL POINT VALUE 125.000
BUILDING ADJUSTMENTS
Market/Design 05 1.00 1.0000
Quality 4 ABOVE AVERAGE 1.1000
Size Size SIZE 0.9600
Construction Factor 05 1.00 1.0000
TOTAL ADJUSTMENT FACTOR 1.060
TOTAL QUALITY INDEX 133
USE MOD Eff. Area QUAL BASE RATE RCN EYB AYB
   Standard  0.26000
CREDENCE TO MARKET
07 01 1,803 133 266.00 479598 1997 1991 % GOOD 74.0
DEPR. BUILDING VALUE - CARD 354,900
TYPE: SINGLE FAMILY BEACH SFR CONSTRUCTION
STYLE: 2 - 1.5 Stories
 

Click on image to enlarge
DEPR. OB/XF VALUE - CARD 0
MARKET LAND VALUE - CARD 625,000
TOTAL MARKET VALUE - CARD 979,900
TOTAL APPRAISED VALUE - CARD 979,900
TOTAL APPRAISED VALUE - PARCEL 979,900
TOTAL PRESENT USE VALUE - PARCEL 0
TOTAL VALUE DEFERRED - PARCEL 0
TOTAL TAXABLE VALUE - PARCEL $ 979,900
PRIOR
BUILDING VALUE 230,360
OBXF VALUE 0
LAND VALUE 210,000
PRESENT USE VALUE 0
DEFERRED VALUE 0
TOTAL VALUE 440,360
PERMIT
CODE DATE NOTE NUMBER AMOUNT
ROUT: WTRSHD:
SALES DATA
OFF. RECORD DATE DEED TYPE Q/U V/I INDICATE SALES PRICE
BOOK PAGE MO YR
05019 0017 5 2023 GW Q I 1150000
01715 0230 3 2003 WD Q I 362000
01118 0458 11 1996 WD Q I 245000
00893 0313 7 1992 WD U V 187000
00824 0111 10 1990 WD U V 62000
HEATED AREA 1,786
NOTES
ST#9492 NC VALUE LOOKS OK
05-19-04 43 07ST#26
226
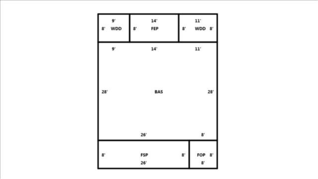
SUBAREA
TYPE GS AREA % RPL CS
BAS 952 100 253232
FEP 112 080 23940
FOP 64 030 5054
FSP 208 035 19418
FUS 572 090 136990
LLS 150 045 18088
WDD 432 020 22876
FIREPLACE 1 - None 0
SUBAREA TOTALS 2,490   479,598
CODE QUALITY DESCRIPTION COUNT LTH WTH UNITS UNIT PRICE ORIG % COND BLDG# SIZE FACT AYB EYB ANN DEP RATE OVR % COND OB/XF DEPR. VALUE
TOTAL OB/XF VALUE 0
BUILDING DIMENSIONS BAS=W11W14W9S28E26E8N28Area:952;WDD=N8E11S8W11Area:88;FEP=N8E14S8W14Area:112;WDD=N8E9S8W9Area:72;FSP=S8E26N8W26Area:208; ;FOP=S8E8N8W8Area:64;FUS=Area:572;LLS=Area:150;WDD=Area:272;TotalArea:2490  
LAND INFORMATION
HIGHEST AND BEST USE USE CODE LOCAL ZONING FRON TAGE DEPTH DEPTH / SIZE LND MOD COND FACT OTHER ADJUSTMENTS AND NOTES
  RF   AC   LC  TO  OT
ROAD
TYPE
LAND UNIT PRICE TOTAL LAND UNITS UNT TYP TOTAL ADJST ADJUSTED UNIT PRICE LAND VALUE OVERRIDE VALUE LAND NOTES
SFR 2NDROW 0105 R8SF 50 124 1.0000 0 1.0000   PW 625,000.00 1.000 LT 1.000 625,000.00 625000    
TOTAL MARKET LAND DATA     625,000  
TOTAL PRESENT USE DATA