BRUNSWICK COUNTY 11/5/2025 5:23:41 PM
KIDD BEVERLY L   Return/Appeal Notes:   Parcel: 234PD002
3624 W. BEACH DR OAK ISLAND 28465 OAK ISLAND PLAT: 00000/00000 UNIQ ID 100068
80112865     ID NO: 204618305937
BRUNSWICK COUNTY (100), DOSHER HOSP TAX (100), OAK ISLAND (100), OAK ISLAND FIRE (200)        CARD NO. 1 of 1  
Reval Year: 2023 Tax Year: 2024 L-W50' 10 B-103 S-4 LB PLAT 5/50 1.0000 LT   SRC=  
Appraised by 53 on 09/21/2022 306A LONG BEACH WEST TW-03 CI-14 FR-08 EX- AT- LAST ACTION 20220921
CONSTRUCTION DETAIL MARKET VALUE   DEPRECIATION CORRELATION OF VALUE
Foundation - 2
Piers>8ft 8.00
Sub Floor System - 4
Plywd/Ptl bd 8.00
Exterior Walls - 10
Aluminum/Vinyl Siding 30.00
Roofing Structure - 03
Gable 7.00
Roofing Cover - 06
Arch Shingle 5.00
Interior Wall Construction - 4
Plywood Panel 19.00
Interior Wall Construction - 5
Drywall/Sheetrock 0.00
Interior Floor Cover - 09
Pine or Soft Woods 6.00
Heating Fuel - 04
Electric 1.00
Heating Type - 09
Heat Pump Only 4.00
Air Conditioning Type - 03
Central 4.00
Bedrooms/Bathrooms/Half-Bathrooms
3/1/1 10.000
Bedrooms
BAS - 3 FUS - 0 LL - 0 _
Bathrooms
BAS - 1 FUS - 0 LL - 0 _
Half-Bathrooms
BAS - 1 FUS - 0 LL - 0 _
Office
BAS - 0 FUS - 0 LL - 0 0
TOTAL POINT VALUE 102.000
BUILDING ADJUSTMENTS
Market/Design 12 .35 1.3500
Quality 3 AVERAGE 1.0000
Size Size SIZE 1.1300
Construction Factor 05 1.00 1.0000
TOTAL ADJUSTMENT FACTOR 1.530
TOTAL QUALITY INDEX 156
USE MOD Eff. Area QUAL BASE RATE RCN EYB AYB
   Standard  0.53000
CREDENCE TO MARKET
07 01 1,122 156 312.00 350064 1970 1957 % GOOD 47.0
DEPR. BUILDING VALUE - CARD 164,530
TYPE: SINGLE FAMILY BEACH SFR CONSTRUCTION
STYLE: 1 - 1.0 Story
 

Click on image to enlarge
DEPR. OB/XF VALUE - CARD 0
MARKET LAND VALUE - CARD 405,000
TOTAL MARKET VALUE - CARD 569,530
TOTAL APPRAISED VALUE - CARD 569,530
TOTAL APPRAISED VALUE - PARCEL 569,530
TOTAL PRESENT USE VALUE - PARCEL 0
TOTAL VALUE DEFERRED - PARCEL 0
TOTAL TAXABLE VALUE - PARCEL $ 569,530
PRIOR
BUILDING VALUE 87,240
OBXF VALUE 0
LAND VALUE 185,000
PRESENT USE VALUE 0
DEFERRED VALUE 0
TOTAL VALUE 272,240
PERMIT
CODE DATE NOTE NUMBER AMOUNT
ROUT: WTRSHD:
SALES DATA
OFF. RECORD DATE DEED TYPE Q/U V/I INDICATE SALES PRICE
BOOK PAGE MO YR
04645 1112 6 2021 GW* X I 280000
01240 0683 8 1998 WD U V 0
HEATED AREA 1,128
NOTES
ST#5289
07ST#49331
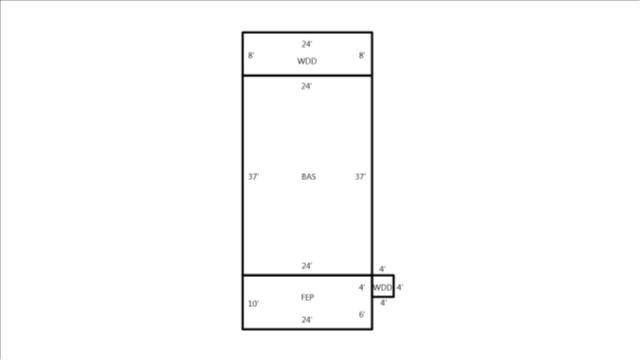
SUBAREA
TYPE GS AREA % RPL CS
BAS 888 100 277056
FEP 240 080 59904
WDD 208 020 13104
FIREPLACE 1 - None 0
SUBAREA TOTALS 1,336   350,064
CODE QUALITY DESCRIPTION COUNT LTH WTH UNITS UNIT PRICE ORIG % COND BLDG# SIZE FACT AYB EYB ANN DEP RATE OVR % COND OB/XF DEPR. VALUE
TOTAL OB/XF VALUE 0
BUILDING DIMENSIONS WDD=W24S8E24N8Area:192;BAS=W24S37E24N37Area:888;FEP=S10E24N6N4W24Area:240;WDD=E4N4W4S4Area:16;TotalArea:1336  
LAND INFORMATION
HIGHEST AND BEST USE USE CODE LOCAL ZONING FRON TAGE DEPTH DEPTH / SIZE LND MOD COND FACT OTHER ADJUSTMENTS AND NOTES
  RF   AC   LC  TO  OT
ROAD
TYPE
LAND UNIT PRICE TOTAL LAND UNITS UNT TYP TOTAL ADJST ADJUSTED UNIT PRICE LAND VALUE OVERRIDE VALUE LAND NOTES
SFR 2NDROW 0105 R7 50 150 1.0000 0 1.0000
  
PS 405,000.00 1.000 LT 1.000 405,000.00 405000    
TOTAL MARKET LAND DATA     405,000  
TOTAL PRESENT USE DATA